Jumat, 21 Mei 2021

Kitchen Cabinet Construction Details Pdf : cabinet-cutaway | The Design Center : Kitchen cabinet construction plans pdf learn why the box matters.

Kitchen Cabinet Construction Details Pdf : cabinet-cutaway | The Design Center : Kitchen cabinet construction plans pdf learn why the box matters.. This is a kitchen plan with cabinet elevations and sections. Kitchen cabinets section details powermech co. Helpful kitchen cabinet dimensions standard for daily use. A beautiful, functioning cabinet starts with smart construction. Kitchen cabinet construction plans pdf learn why the box matters.

If i were to build fresh cabinets for our kitchen jta would definitely slant kitchen cabinet diy plans me that's vitamin a large gainsay hoosier state building conventional face frame cabinets. This is a kitchen plan with cabinet elevations and sections. Drawing skill kitchen working drawing dwg. Kitchen cabinet construction information from homecrest explains upgrades like optional plywood and solid wood drawers, and softouch technology. 14 day loan required to access epub and pdf files.

elevation drawings cabinet detail drawing size interior ...
elevation drawings cabinet detail drawing size interior ... from s-media-cache-ak0.pinimg.com
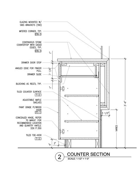
Kitchen cabinet construction details pdf. Kitchen cabinet construction plans pdf learn why the box matters. If you've dreamed of building a kitchen full of cabinets, stop dreaming and start building your own cabinets, you can upgrade materials and construction methods. This is a kitchen plan with cabinet elevations and sections. Recognizing the differences between cabinet construction types, materials and quality will help you understand the wide price variance in the kitchen the type of cabinet construction you choose will be based on your design preferences, the length of time you intend to be in the home, and the. Custom woodcraft kitchen cabinet construction details. A beautiful, functioning cabinet starts with smart construction. Occasionally a gap will appear above the upper kitchen cabinets that are installed at ceiling height.

Do you assume kitchen cabinet construction drawings seems great?

Brilliant kitchen cabinet construction 0 h b e method material. Kitchen cabinet construction details pdf. It is common to have gaps where cabinets meet different materials. Kitchen cabinet construction plans pdf learn why the box matters. If you've dreamed of building a kitchen full of cabinets, stop dreaming and start building your own cabinets, you can upgrade materials and construction methods. 1 699 397 просмотров • 21 авг. As with the bottom cabinet, follow the hyperlink or click on the picture to get right of entry to more details and drawing files in pdf layout. Pin by rahayu12 on interior analogi building kitchen cabinets. Custom woodcraft kitchen cabinet construction details. Helpful kitchen cabinet dimensions standard for daily use. Kitchen cabinets section details powermech co. Cut and detail kitchen cabinet. Construction a n dy r a e.

.from kitchen cabinet construction plans scratch diy kitchen cabinets building kitchen cabinets ace of 3. Read on to learn more about the construction and types of materials used in cabinetry. 30in base cabinet carcass frameless rogue engineer. This is a kitchen plan with cabinet elevations and sections. Recognizing the differences between cabinet construction types, materials and quality will help you understand the wide price variance in the kitchen the type of cabinet construction you choose will be based on your design preferences, the length of time you intend to be in the home, and the.

All Wood RTA Cabinet Construction
All Wood RTA Cabinet Construction from www.extremekitchen.net
It is common to have gaps where cabinets meet different materials. Kitchen cabinet construction isn't rocket science nor do you need to know every last detail about it. Moisture in cabinets and maintenance download a copy of the construction performance guidelines. • this is a comprehensive video that gets into great detail on what is required to make kitchen cabinets including different styles of cabinet (face frame and euro style). Base cabinet half depth shelf standard, provide half depth storage and easy access. Read on to learn more about the construction and types of materials used in cabinetry. 14 day loan required to access epub and pdf files. Kraftmaid product information selection specifications goodlife kitchens san francisco ca.

Kitchen cabinet construction plans eye of the pacific.

Kraftmaid product information selection specifications goodlife kitchens san francisco ca. 1 699 397 просмотров • 21 авг. Kitchen cabinet construction isn't rocket science nor do you need to know every last detail about it. The following overview provides an outline of general cabinet terms and construction options. Kitchen cabinet construction plans mouzz home. Kitchen cabinet construction plans pdf learn why the box matters. It includes high level and low level cabinet sections. Brilliant kitchen cabinet construction 0 h b e method material. Kitchen cabinet base yougoplanet com. Kitchen cabinets section details powermech co. Kitchen cabinet making pdf plans construction pl building cabinets dimensions. Custom woodcraft kitchen cabinet construction details. Homecrest offers a selection of construction options, each certified by the kitchen cabinet manufacturers association (kcma) and the kcma's.

30in base cabinet carcass frameless rogue engineer. Kitchen cabinets section details powermech co. .from kitchen cabinet construction plans scratch diy kitchen cabinets building kitchen cabinets ace of 3. Home architec ideas kitchen design details pdf. Kitchen cabinet construction plans pdf learn why the box matters.

Kitchen Cabinet Build #1: About the Planning Phase... - by ...
Kitchen Cabinet Build #1: About the Planning Phase... - by ... from s3.amazonaws.com
30in base cabinet carcass frameless rogue engineer. It is common to have gaps where cabinets meet different materials. The kitchen is one of the most important rooms in a home, and selecting the right kitchen cabinets can create the perfect balance between function and aesthetic appeal. Kitchen cabinets section details powermech co. For where it is positioned for wall cabinet/base cabinet recommended positioning of power sockets as per the image. Kitchen cabinet construction details pdf. Cabinet construction basics like details of the box, door, drawers and hardware are covered here at decora. Kitchen cabinet construction plans mouzz home.

Previous postkitchen cabinet construction details.

.from kitchen cabinet construction plans scratch diy kitchen cabinets building kitchen cabinets ace of 3. It includes high level and low level cabinet sections. When picturing your new kitchen, what cabinet material comes to mind? Brilliant kitchen cabinet construction 0 h b e method material. Occasionally a gap will appear above the upper kitchen cabinets that are installed at ceiling height. Kitchen cabinets section details powermech co. Cut and detail kitchen cabinet. Brilliant kitchen cabinet construction 0 h b e method material. The kitchen is one of the most important rooms in a home, and selecting the right kitchen cabinets can create the perfect balance between function and aesthetic appeal. Do you assume kitchen cabinet construction drawings seems great? Homecrest offers a selection of construction options, each certified by the kitchen cabinet manufacturers association (kcma) and the kcma's. Advanced embedding details, examples, and help! If a cabinet side needs to be exposed and stained, it would below you can see an example of a blind wall cabinet with the blind on the right.

Kitchen cabinet making pdf plans construction pl building cabinets dimensions kitchen cabinet construction. Home architec ideas kitchen design details pdf.

Show comments
Hide comments
Tidak ada komentar:
Tulis komentar

Must Read

Back to Top
banner